Casa indipendente in vendita

Cervaro, Via Vecchia de Piternis
€ 135.000
10 locali 10 locali
300 Mq 300 Mq
5 bagni 5 bagni

Casa indipendente in vendita

Cervaro, Via Vecchia de Piternis

Descrizione annuncio

Cervaro, via Vecchia de Piternis, in esclusiva, proponiamo in vendita una soluzione indipendente di ampia metratura, articolata su tre livelli e composta da tre appartamenti autonomi, ideale per più nuclei familiari, attività ricettive o investimento.

La proprietà è così suddivisa:

Appartamento 1:

Piano Terra: ingresso, salone, cucina, cantina e bagno;

Piano Primo: due camere da letto, bagno e balcone;

Collegamento tramite scala esterna.

Appartamento 2:

Piano Terra: ingresso, salone, cucina e bagno;

Piano Primo: due camere da letto, bagno, ripostiglio, balcone e terrazzo;

Collegamento tramite scala interna.

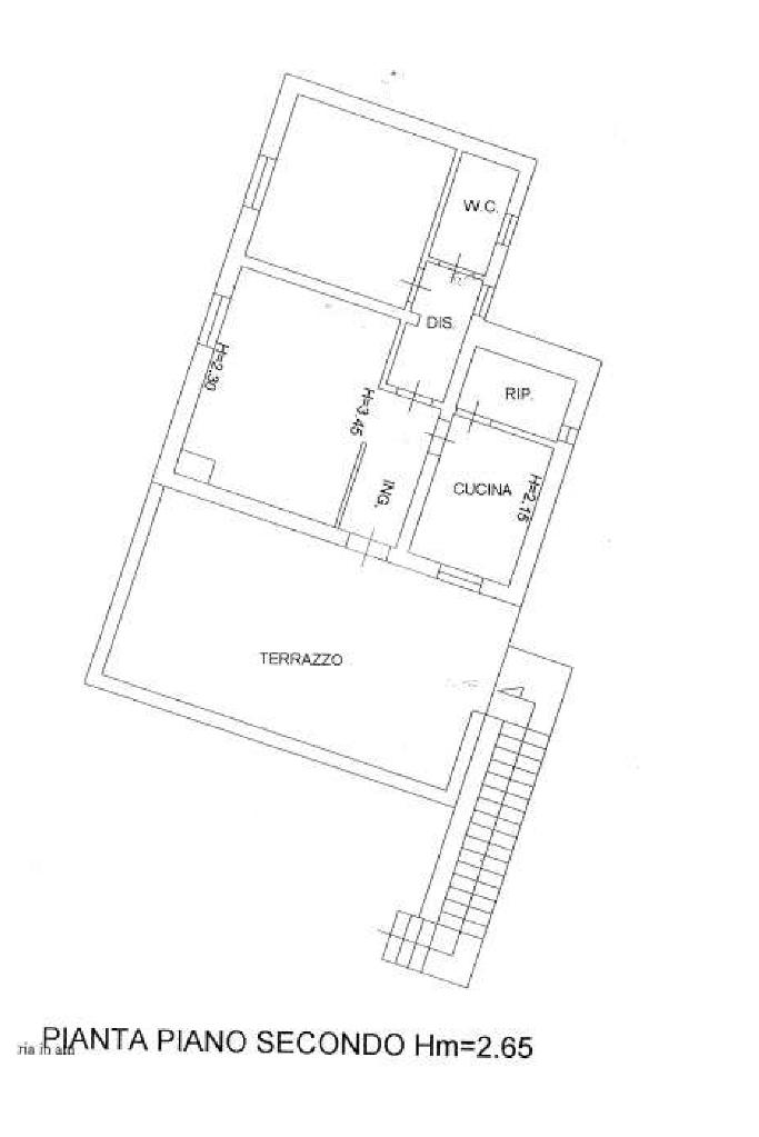
Appartamento 3:

Salone, cucina, camera da letto, bagno, ripostiglio e terrazzo;

Ingresso indipendente.

Completa la proprietà un terreno di 6.775 mq, che avvolge completamente l’immobile, ideale per chi cerca privacy, spazi esterni o possibilità di realizzare aree verdi e coltivazioni. Soluzione versatile, immersa nel verde e a breve distanza dai principali servizi.

Mostra tutto

Nelle vicinanze

Ristoranti Ristoranti
Agriturismo Crete Gialle
2,3 Km
Mostra tutto

Caratteristiche

Rif.:
61144352
Piano:
3 di 3 (Piano medio)
Posti auto:
4
Balconi:
1
Terrazzi:
1
Arredamento:
Assente
Mostra tutto
Prezzo Prezzo
€ 135.000
Rata mutuo Rata mutuo
€ 640 / mese
Spese annue Spese annue
€ 400
Proponi il tuo prezzoProponi il tuo prezzo

Classe Energetica

G
G
G
G
G
G
G
G
G
EP globale non rinnovabile:
142.00 kW h/m² anno
EP globale rinnovabile:
142.00 kW h/m² anno
EP invernale del fabbricato:
EP estiva del fabbricato:
Anno di costruzione:
1980
Riscaldamento:
Autonomo
Tipo impianto:
A radiatori
Tipo alimentazione:
GPL

Ti interessa visionare l'immobile?

Fissa un appuntamento  Fissa un appuntamento

Richiedi informazioni

Clicca su Leggi per aprire l'informativa
* Questi campi sono obbligatori

Calcola il tuo mutuo

Semplice e senza impegno
Anticipo

( % )
Mutuo

( % )

pochi semplici passi

inserisci i tuoi dati
Questionario completato
Grazie per aver richiesto un appuntamento senza impegno con un nostro Consulente del Credito e Assicurativo.

Hai inserito correttamente tutti i dati necessari e a breve riceverai una e-mail con un link da convalidare per inviare i tuoi dati.
Affiliato
Studio Bonomi Srl
P.zza Vittorio Emanuele , 10 03044 Cervaro (FR)

Il nostro staff


  • Angelo Di Mambro
    Responsabile
P.zza Vittorio Emanuele , 10 03044 Cervaro (FR)
Zona: Cervaro
Mostra su mappa
Affiliato
Studio Bonomi Srl
P.zza Vittorio Emanuele , 10 03044 Cervaro (FR)

2026 Tecnocasa Franchising S.p.A. - P. IVA 08365160152 - Via Monte Bianco 60/A 20089 Rozzano (MI). Ogni agenzia ha un proprio titolare ed è autonoma. Privacy policy | Policy utilizzo | Cookie policy